Trilocale in vendita

Saronno, Via Alighieri Dante
€ 205.000
Prezzo aggiornato
3 locali 3 locali
95 Mq 95 Mq
1 bagno 1 bagno

Trilocale in vendita

Saronno, Via Alighieri Dante

Descrizione annuncio

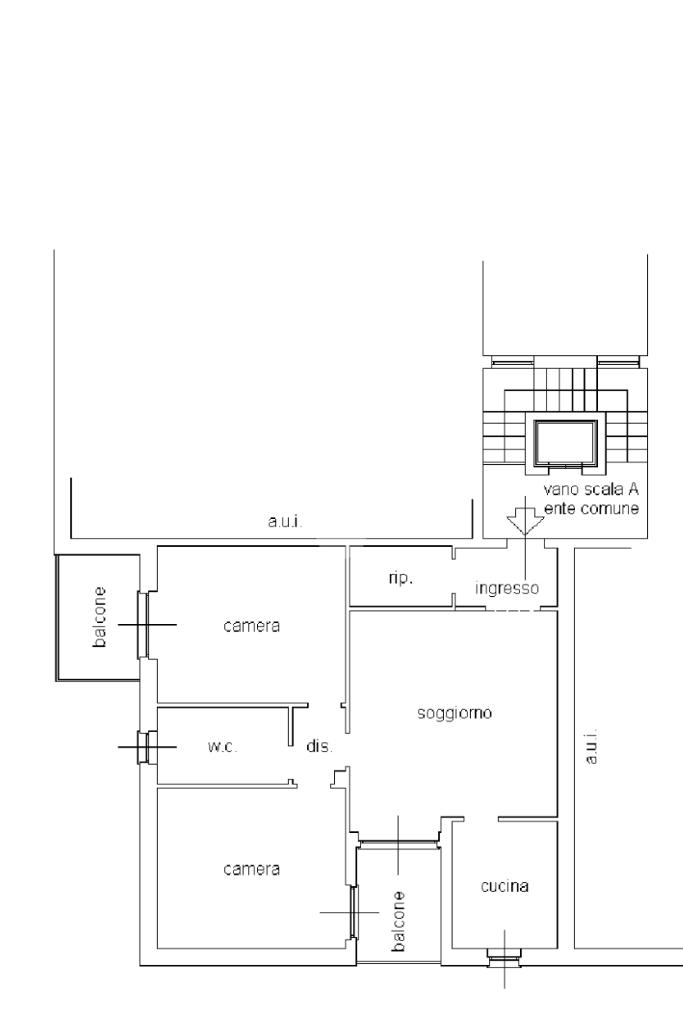
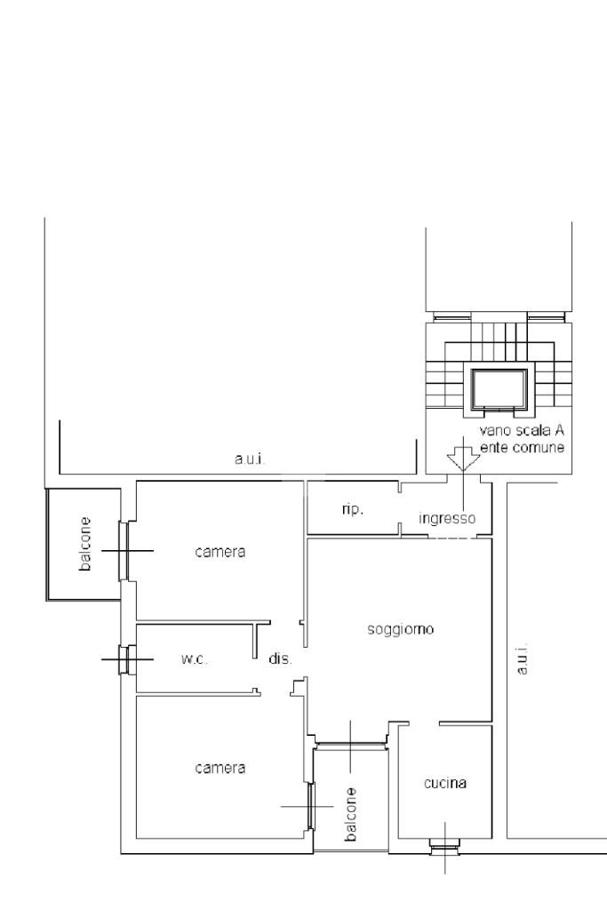
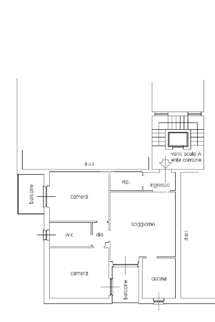
In zona comoda per raggiungere tutti i principali servizi proponiamo in vendita ,un luminoso trilocale situato in contesto residenziale tranquillo,posto all'ultimo piano in palazzina di tre piani.

L’ingresso apre al disimpegno che accompagna al soggiorno che presenta una generosa metratura ed è servito dal terrazzino, ideale per momenti di relax.

La cucina presenta dimensioni abitabili che permettono l'utilizzo anche come sala pranzo.

Un piccolo disimpegno separa la zona giorno dalla zona notte, dove troviamo due camere da letto con terrazzo e un bagno.

Un comodo locale è adibito a guardaroba.

Completano la proprietà il box auto, un posto auto di proprietà e un'ampia cantina.

L’appartamento si presenta in buone condizioni, con ottime rifiniture e riscaldamento autonomo.

Per qualsiasi informazione e per fissare un appuntamento puoi contattare il nostro ufficio di SARONNO in viale RIMEMBRANZE n. 52 Tel. 0296280030

Devi vendere? Vuoi conoscere il reale valore del tuo immobile?

Affidati alla nostra agenzia per avere una valutazione gratuita!


Siamo presenti a Saronno da oltre 30 anni e grazie alla profonda conoscenza del mercato locale, siamo in grado di effettuare una valutazione di mercato in termini precisi e tempestivi. A nostra disposizione abbiamo, TecnoValore, un software esclusivo in dotazione alle agenzie del Gruppo, che ci supporta nella valutazione degli immobili, grazie all'applicazione di metodologie statistiche che elaborano i dati su valutazioni e compravendite effettuate nella zona d'interesse.

Mostra tutto

Nelle vicinanze

Trasporto pubblico Trasporto pubblico
Saronno
Saronno
1,4 Km
Via Dante Alighieri - Via Piave (Saronno)
Via Dante Alighieri - Via Piave (Saronno)
80 m
Via Piave - Via Petrarca (Saronno)
Via Piave - Via Petrarca (Saronno)
240 m
Saronno Sud
Saronno Sud
510 m
Caronno Pertusella
Caronno Pertusella
2,4 Km
Ricariche auto elettriche Ricariche auto elettriche
Decathlon saronno
850 m
BECHARGE Piscina DI SARONNO
890 m
BECHARGE MUNICIPIO DI SARONNO
970 m
BeCharge Autostazione di Saronno
1,6 Km
Studio Dottor Maurizio Pedone - Clinica Amicodentista
2,5 Km
Scuole Scuole
Liceo Classico S.M. Legnani Succursale
940 m
Scuola Primaria Ignoto Militi
970 m
Scuola elementare G.Pizzigoni
1,0 Km
Scuola Secondaria di primo grado Leonardo da Vinci
1,3 Km
UNITRE - Università della terza età
1,5 Km
Farmacia Farmacia
Farmacia Comunale 1
1,0 Km
Mario Taglioretti
1,1 Km
San Francesco
1,4 Km
Farmacia Nuova
1,5 Km
Farmacia Santa Maria
1,8 Km
Ospedali Ospedali
Ospedale di Saronno
1,5 Km
LABORATORIO ANALISI MEDICHE GESTIONE LABORATORI SCIENTIFICI LE BETULLE PUNTO PRELIEVI:
2,4 Km
Supermercati Supermercati
Tigros Saronno
940 m
Carrefour Market
1,1 Km
MD
1,6 Km
Unes
1,6 Km
Iperal
1,7 Km
Negozi Negozi
Ceriani Centrotela
1,3 Km
Seveso107
1,4 Km
Garden Center
1,4 Km
Styling
1,6 Km
Panetteria
1,8 Km
Bar Bar
Vintage Karaoke
830 m
Club House Saronno
970 m
Pigreco Cafė
1,1 Km
Le Gran Cafè
1,3 Km
Bar
1,4 Km
Ristoranti Ristoranti
Wu
240 m
Ristorante Pizzeria La Perla
820 m
PistoPizza
1,2 Km
Il Tubino
1,3 Km
Ristorante Pizzeria Maiori
1,3 Km
Mostra tutto

Caratteristiche

Rif.:
61178257
Piano:
3 di 3 con ascensore (ultimo Piano)
Box:
1
Posti auto:
1
Terrazzi:
2
Camere da letto:
2
Mostra tutto
Prezzo Prezzo
€ 205.000
Rata mutuo Rata mutuo
€ 966 / mese
Spese annue Spese annue
€ 1.500
Proponi il tuo prezzoProponi il tuo prezzo

Classe Energetica

G
G
G
G
G
G
G
G
G
EP globale non rinnovabile:
205.01 kW h/m² anno
EP globale rinnovabile:
205.01 kW h/m² anno
EP invernale del fabbricato:
EP estiva del fabbricato:
Anno di costruzione:
1980
Riscaldamento:
Autonomo
Tipo impianto:
A radiatori
Tipo alimentazione:
Metano

Prezzo ridotto di €1 (7%%)

Ti interessa visionare l'immobile?

Fissa un appuntamento  Fissa un appuntamento

Richiedi informazioni

Clicca su Leggi per aprire l'informativa
* Questi campi sono obbligatori

Calcola il tuo mutuo

Semplice e senza impegno
Anticipo

( % )
Mutuo

( % )

pochi semplici passi

inserisci i tuoi dati
Questionario completato
Grazie per aver richiesto un appuntamento senza impegno con un nostro Consulente del Credito e Assicurativo.

Hai inserito correttamente tutti i dati necessari e a breve riceverai una e-mail con un link da convalidare per inviare i tuoi dati.
Affiliato
Maria Teresa Immobiliare Sas
Viale Rimembranze , 52 21047 Saronno (VA)

Il nostro staff


  • Mariateresa Dianese
    Affiliata

  • Nancy Aiello
    Coordinatrice

  • Federica Ropa
    Coordinatrice
Viale Rimembranze , 52 21047 Saronno (VA)
Zona: Saronno Centro-Saronno Stazione-Saronno Posta Nuova
Mostra su mappa
Orari: Da Lun. a Ven.9:00-12:30,14:45-19:30 Sabato chiusura 12:30
Affiliato
Maria Teresa Immobiliare Sas
Viale Rimembranze , 52 21047 Saronno (VA)

2026 Tecnocasa Franchising S.p.A. - P. IVA 08365160152 - Via Monte Bianco 60/A 20089 Rozzano (MI). Ogni agenzia ha un proprio titolare ed è autonoma. Privacy policy | Policy utilizzo | Cookie policy