Trilocale in vendita

Saronno, Via Carlo Marx
€ 140.000
3 locali 3 locali
90 Mq 90 Mq

Trilocale in vendita

Saronno, Via Carlo Marx

Descrizione annuncio

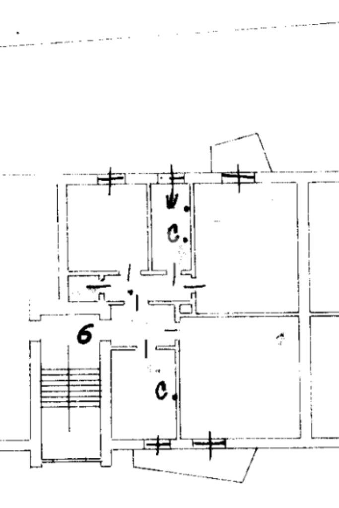
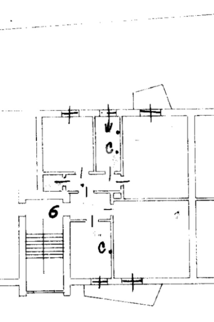
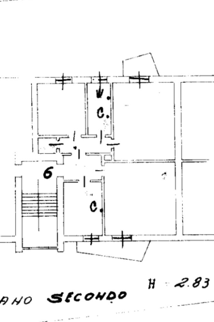
In zona Parco Lura, all’interno di una palazzina recentemente ristrutturata e caratterizzata da un’ottima classe energetica, proponiamo in vendita un trilocale posto al secondo piano.

L’ingresso si apre su un disimpegno che conduce ai vari ambienti della casa: una cucina abitabile con balcone, un luminoso soggiorno, due camere da letto , una delle quali dotata di balcone, oltre al bagno recentemente rinnovato e un comodo ripostiglio.


L’appartamento si presenta in ottime condizioni, con infissi nuovi, aria condizionata e riscaldamento autonomo.

A completamento della proprietà è presente un’ampia cantina.

Per qualsiasi informazione e per fissare un appuntamento puoi contattare il nostro ufficio di SARONNO in viale RIMEMBRANZE n. 52 Tel. 0296280030

Devi vendere? Vuoi conoscere il reale valore del tuo immobile?

Affidati alla nostra agenzia per avere una valutazione gratuita!


Siamo presenti a Saronno da oltre 30 anni e grazie alla profonda conoscenza del mercato locale, siamo in grado di effettuare una valutazione di mercato in termini precisi e tempestivi. A nostra disposizione abbiamo, TecnoValore, un software esclusivo in dotazione alle agenzie del Gruppo, che ci supporta nella valutazione degli immobili, grazie all'applicazione di metodologie statistiche che elaborano i dati su valutazioni e compravendite effettuate nella zona d'interesse.

Mostra tutto

Nelle vicinanze

Trasporto pubblico Trasporto pubblico
Saronno
Saronno
1,7 Km
Piazzale Marx (Saronno)
Piazzale Marx (Saronno)
30 m
Linea 1 (Prealpi) - Marx centro
Linea 1 (Prealpi) - Marx centro
140 m
Rovello Porro
Rovello Porro
1,3 Km
Rovellasca-Manera
Rovellasca-Manera
2,9 Km
Ricariche auto elettriche Ricariche auto elettriche
U2 Supermercato Rovello Porro | EnelX
1,4 Km
BECHARGE Piscina DI SARONNO
1,7 Km
BECHARGE MUNICIPIO DI SARONNO
1,7 Km
BeCharge Autostazione di Saronno
1,8 Km
Lidl Gerenzano
1,9 Km
Scuole Scuole
IAL Lombardia
270 m
Istituto Prealpi
850 m
Scuola Primaria "Damiano Chiesa"
940 m
Scuola Primaria Gianni Rodari
1,1 Km
Istituto Orsoline
1,2 Km
Farmacia Farmacia
Parafarmacia della Dottoressa Alessandra Venturini
570 m
Farmacia Santa Maria
790 m
Farmacia Nuova
1,2 Km
Farmacia Comunale 2
1,3 Km
Farmacia
1,4 Km
Ospedali Ospedali
LABORATORIO ANALISI MEDICHE GESTIONE LABORATORI SCIENTIFICI LE BETULLE PUNTO PRELIEVI:
580 m
Ospedale di Saronno
1,0 Km
Supermercati Supermercati
Eredi di Garbelli Rita
330 m
Unes
570 m
Iperal
1,3 Km
U2
1,3 Km
Carrefour Market
1,5 Km
Negozi Negozi
Pasticceria "Dolciaria Saronnese"
750 m
Panetteria
1,3 Km
Ceriani Centrotela
1,4 Km
Seveso107
1,5 Km
Buon Bread
1,8 Km
Bar Bar
Havana Club
260 m
Bar
360 m
better(le viole)
460 m
Bar Sala Biliardi Inverni Gianmaria
560 m
Al Focolare
830 m
Ristoranti Ristoranti
La Vecchia Fiorentina
480 m
Gatsby
660 m
la cantina di Manuela
890 m
Ristorante Pizzeria Maiori
1,2 Km
Ristorante Pizzeria Pandy
1,3 Km
Mostra tutto

Caratteristiche

Rif.:
61143631
Piano:
2 di 3 (Piano medio)
Condizionamento:
Autonomo
Ascensore:
No
Riscaldamento:
Autonomo
Libero:
No
Mostra tutto
Prezzo Prezzo
€ 140.000
Rata mutuo Rata mutuo
€ 665 / mese
Spese annue Spese annue
€ 900
Proponi il tuo prezzoProponi il tuo prezzo
Immobile valutato con T·Valuta

Classe Energetica

B
B
B
B
B
B
B
B
B
EP globale non rinnovabile:
60.00 kW h/m² anno
EP invernale del fabbricato:
EP estiva del fabbricato:
Anno di costruzione:
1967
Riscaldamento:
Autonomo
Tipo impianto:
A radiatori
Tipo alimentazione:
Metano

Ti interessa visionare l'immobile?

Fissa un appuntamento  Fissa un appuntamento

Richiedi informazioni

Clicca su Leggi per aprire l'informativa
* Questi campi sono obbligatori

Calcola il tuo mutuo

Semplice e senza impegno
Anticipo

( % )
Mutuo

( % )

pochi semplici passi

inserisci i tuoi dati
Questionario completato
Grazie per aver richiesto un appuntamento senza impegno con un nostro Consulente del Credito e Assicurativo.

Hai inserito correttamente tutti i dati necessari e a breve riceverai una e-mail con un link da convalidare per inviare i tuoi dati.
Affiliato
Maria Teresa Immobiliare Sas
Viale Rimembranze , 52 21047 Saronno (VA)

Il nostro staff


  • Mariateresa Dianese
    Affiliata

  • Nancy Aiello
    Coordinatrice

  • Federica Ropa
    Coordinatrice
Viale Rimembranze , 52 21047 Saronno (VA)
Zona: Saronno Centro-Saronno Stazione-Saronno Posta Nuova
Mostra su mappa
Orari: Da Lun. a Ven.9:00-12:30,14:45-19:30 Sabato chiusura 12:30
Affiliato
Maria Teresa Immobiliare Sas
Viale Rimembranze , 52 21047 Saronno (VA)

2026 Tecnocasa Franchising S.p.A. - P. IVA 08365160152 - Via Monte Bianco 60/A 20089 Rozzano (MI). Ogni agenzia ha un proprio titolare ed è autonoma. Privacy policy | Policy utilizzo | Cookie policy