Bilocale in vendita

Saronno, Via Cascina Colombara
€ 115.000
2 locali 2 locali
57 Mq 57 Mq

Bilocale in vendita

Saronno, Via Cascina Colombara

Descrizione annuncio

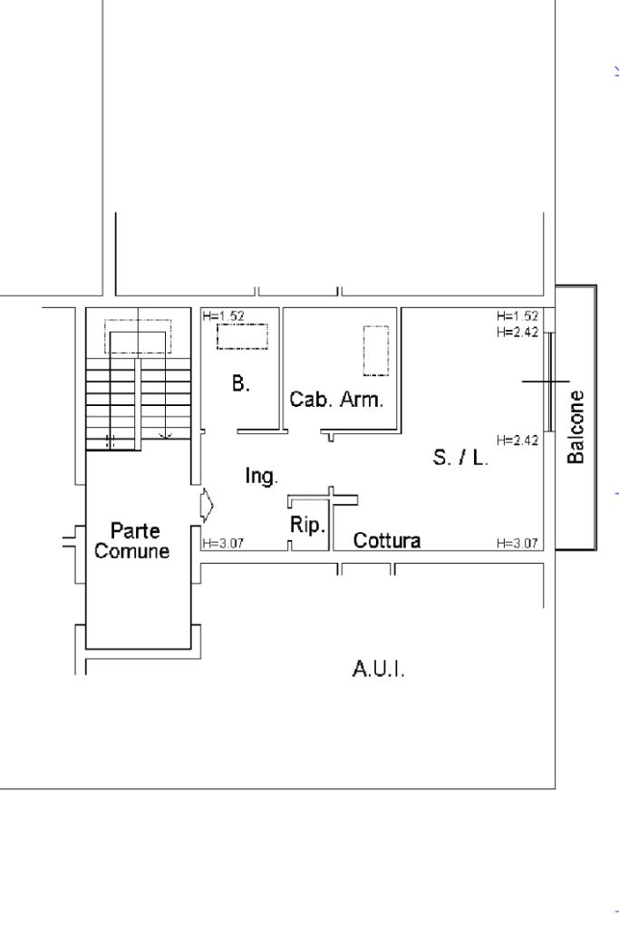
In zona Colombara, palazzina recente composta da poche unità abitative, proponiamo in vendita un appartamento posto al primo ed ultimo piano, completo di box.

L’ingresso conduce direttamente nella zona giorno con parete attrezzata per la cucina e accesso al balcone. Adiacenti si trovano la camera da letto, il bagno e un comodo ripostiglio.

L’immobile è inoltre dotato di cantina e box auto.

Per qualsiasi informazione e per fissare un appuntamento puoi contattare il nostro ufficio di SARONNO in viale RIMEMBRANZE n. 52 Tel. 0296280030

Devi vendere? Vuoi conoscere il reale valore del tuo immobile?

Affidati alla nostra agenzia per avere una valutazione gratuita!


Siamo presenti a Saronno da oltre 30 anni e grazie alla profonda conoscenza del mercato locale, siamo in grado di effettuare una valutazione di mercato in termini precisi e tempestivi. A nostra disposizione abbiamo, TecnoValore, un software esclusivo in dotazione alle agenzie del Gruppo, che ci supporta nella valutazione degli immobili, grazie all'applicazione di metodologie statistiche che elaborano i dati su valutazioni e compravendite effettuate nella zona d'interesse.

Mostra tutto

Nelle vicinanze

Trasporto pubblico Trasporto pubblico
Saronno
Saronno
2,4 Km
Via Don Sturzo (Saronno)
Via Don Sturzo (Saronno)
460 m
Saronno Sud FNM
Saronno Sud FNM
680 m
Saronno Sud
Saronno Sud
650 m
Caronno Pertusella
Caronno Pertusella
1,6 Km
Ricariche auto elettriche Ricariche auto elettriche
Decathlon saronno
1,5 Km
BECHARGE Piscina DI SARONNO
1,6 Km
BECHARGE MUNICIPIO DI SARONNO
1,9 Km
Studio Dottor Maurizio Pedone - Clinica Amicodentista
2,3 Km
BeCharge Autostazione di Saronno
2,5 Km
Scuole Scuole
Scuola elementare G.Pizzigoni
1,7 Km
Scuola Secondaria di Primo Grado Luigi Pirandello
1,7 Km
Liceo Classico S.M. Legnani Succursale
1,9 Km
Scuola Primaria Ignoto Militi
1,9 Km
Scuola Primaria Sant'Alessandro
2,0 Km
Farmacia Farmacia
Farmacia Sant'Anna
1,7 Km
Farmacia Comunale 1
1,9 Km
Mario Taglioretti
2,1 Km
Farmacia
2,1 Km
Volturno
2,1 Km
Ospedali Ospedali
Ospedale di Saronno
2,3 Km
Supermercati Supermercati
MD
1,0 Km
Tigros Saronno
1,4 Km
Esselunga di Solaro
1,6 Km
Conad
1,6 Km
Carrefour Market
2,1 Km
Negozi Negozi
Garden Center
510 m
Styling
1,0 Km
Ceriani Centrotela
2,2 Km
Seveso107
2,3 Km
Panificio
2,5 Km
Bar Bar
Club House Saronno
1,6 Km
Vintage Karaoke
1,8 Km
Pigreco Cafė
2,0 Km
Le Gran Cafè
2,2 Km
Bar
2,3 Km
Ristoranti Ristoranti
Area - Ristorante Bar
680 m
Wu
940 m
Birra & Brace
950 m
La Teglia 3
1,5 Km
Ristorante Corallo
1,5 Km
Mostra tutto

Caratteristiche

Rif.:
61132496
Piano:
1 (Piano alto)
Condizionamento:
Autonomo
Ascensore:
No
Riscaldamento:
Autonomo
Giardino:
Condominiale
Mostra tutto
Prezzo Prezzo
€ 115.000
Rata mutuo Rata mutuo
€ 542 / mese
Spese annue Spese annue
€ 600
Proponi il tuo prezzoProponi il tuo prezzo
Immobile valutato con T·Valuta

Classe Energetica

D
D
D
D
D
D
D
D
D
EP globale non rinnovabile:
168.17 kW h/m² anno
EP globale rinnovabile:
168.17 kW h/m² anno
EP invernale del fabbricato:
EP estiva del fabbricato:
Anno di costruzione:
2005
Riscaldamento:
Autonomo
Tipo impianto:
A radiatori
Tipo alimentazione:
Metano

Ti interessa visionare l'immobile?

Fissa un appuntamento  Fissa un appuntamento

Richiedi informazioni

Clicca su Leggi per aprire l'informativa
* Questi campi sono obbligatori

Calcola il tuo mutuo

Semplice e senza impegno
Anticipo

( % )
Mutuo

( % )

pochi semplici passi

inserisci i tuoi dati
Questionario completato
Grazie per aver richiesto un appuntamento senza impegno con un nostro Consulente del Credito e Assicurativo.

Hai inserito correttamente tutti i dati necessari e a breve riceverai una e-mail con un link da convalidare per inviare i tuoi dati.
Affiliato
Maria Teresa Immobiliare Sas
Viale Rimembranze , 52 21047 Saronno (VA)

Il nostro staff


  • Mariateresa Dianese
    Affiliata

  • Nancy Aiello
    Coordinatrice
Viale Rimembranze , 52 21047 Saronno (VA)
Zona: Saronno Centro-Saronno Stazione-Saronno Posta Nuova
Mostra su mappa
Orari: Da Lun. a Ven.9:00-12:30,14:45-19:30 Sabato chiusura 12:30
Affiliato
Maria Teresa Immobiliare Sas
Viale Rimembranze , 52 21047 Saronno (VA)

2025 Tecnocasa Franchising S.p.A. - P. IVA 08365160152 - Via Monte Bianco 60/A 20089 Rozzano (MI). Ogni agenzia ha un proprio titolare ed è autonoma. Privacy policy | Policy utilizzo | Cookie policy