Quadrilocale in vendita

Saronno, Via Valletta
€ 285.000
4 locali 4 locali
143 Mq 143 Mq

Quadrilocale in vendita

Saronno, Via Valletta

Descrizione annuncio

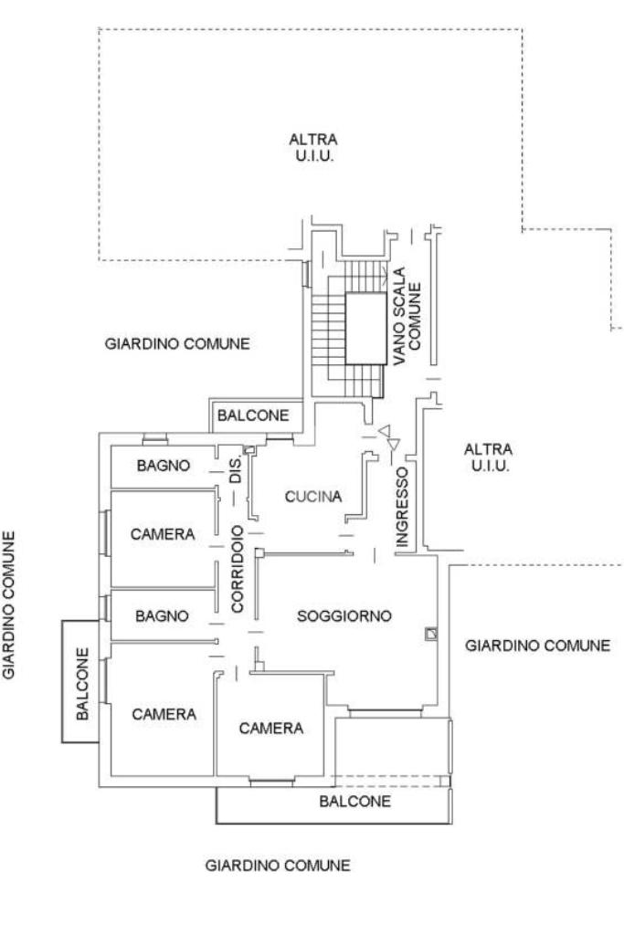
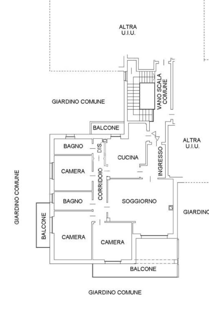
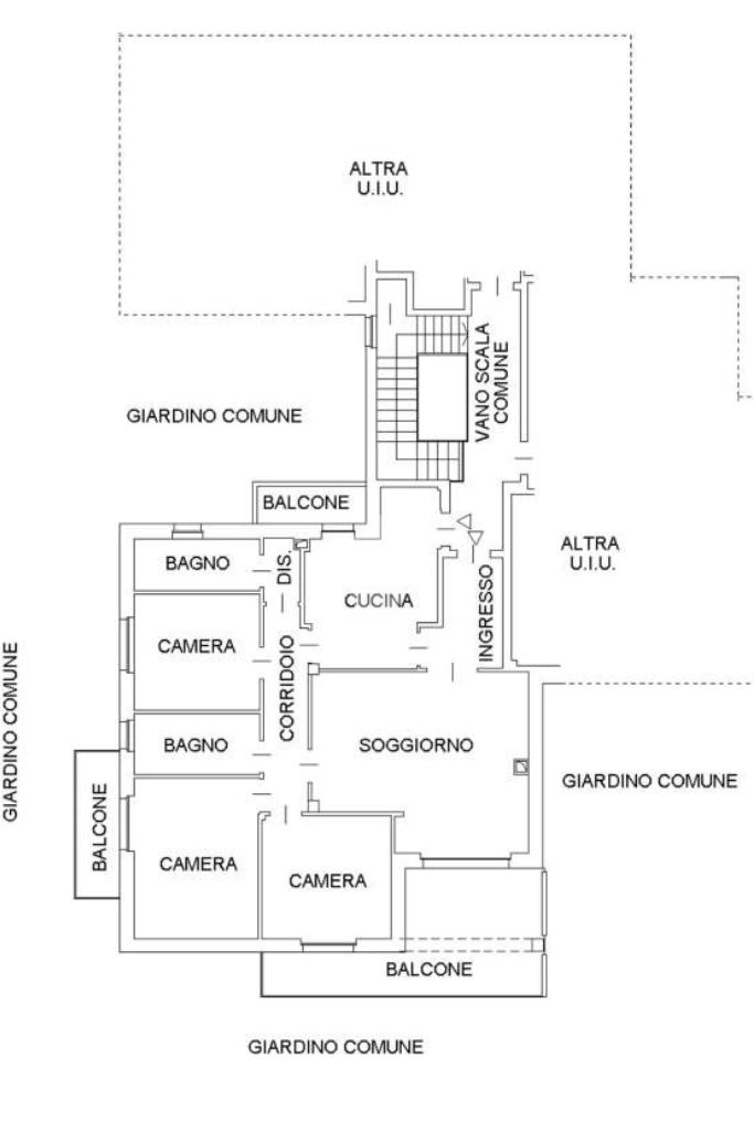
A pochi passi dalla stazione, proponiamo in vendita un appartamento di quattro locali oltre servizi, situato al primo ed ultimo piano di un piccolo contesto circondato dal verde.

Dall’ingresso si accede al disimpegno di generosa metratura che accompagna all’ampio soggiorno con camino servito dal terrazzo esposto a sud,con affaccio sull'area verde condominiale, ideale per godersi momenti di relax zona giorno presente la cucina, di notevole dimensione, con doppio ingresso e balcone.

Il disimpegno conduce alla zona notte composta da tre camere da letto spaziose e da due bagni, entrambi finestrati.

Completano la proprietà una spaziosa cantina e un box auto.

Per qualsiasi informazione e per fissare un appuntamento puoi contattare il nostro ufficio di SARONNO in viale RIMEMBRANZE n. 52 Tel. 0296280030

Devi vendere? Vuoi conoscere il reale valore del tuo immobile?

Affidati alla nostra agenzia per avere una valutazione gratuita!


Siamo presenti a Saronno da oltre 30 anni e grazie alla profonda conoscenza del mercato locale, siamo in grado di effettuare una valutazione di mercato in termini precisi e tempestivi. A nostra disposizione abbiamo, TecnoValore, un software esclusivo in dotazione alle agenzie del Gruppo, che ci supporta nella valutazione degli immobili, grazie all'applicazione di metodologie statistiche che elaborano i dati su valutazioni e compravendite effettuate nella zona d'interesse.

Mostra tutto

Nelle vicinanze

Trasporto pubblico Trasporto pubblico
Saronno
Saronno
960 m
Trasporto pubblico
220 m
Via Volonterio - Via Pagani (Saronno)
Via Volonterio - Via Pagani (Saronno)
320 m
Rovello Porro
Rovello Porro
2,1 Km
Gerenzano-Turate
Gerenzano-Turate
2,3 Km
Ricariche auto elettriche Ricariche auto elettriche
Lidl Gerenzano
720 m
BeCharge Autostazione di Saronno
920 m
BECHARGE MUNICIPIO DI SARONNO
1,4 Km
BECHARGE Piscina DI SARONNO
1,8 Km
Gerenzano Bellini | EnelX
1,9 Km
Scuole Scuole
Scuola Primaria Gianni Rodari
150 m
Liceo classico "Stefano Maria Legnani"
460 m
Istituto Prealpi
510 m
Istituto tecnico industriale statale "Giulio Riva"
520 m
Liceo Scientifico Statale G.B. Grassi
540 m
Farmacia Farmacia
Farmacia Comunale 2
310 m
Parafarmacia della Dottoressa Alessandra Venturini
760 m
Farmacia Nuova
870 m
San Francesco
950 m
Mario Taglioretti
1,2 Km
Ospedali Ospedali
LABORATORIO ANALISI MEDICHE GESTIONE LABORATORI SCIENTIFICI LE BETULLE PUNTO PRELIEVI:
620 m
Ospedale di Saronno
1,1 Km
Villaggio Amico
2,3 Km
Supermercati Supermercati
Iperal
620 m
Unes
640 m
Lidl
690 m
Eredi di Garbelli Rita
870 m
Carrefour Market
970 m
Negozi Negozi
Panetteria
520 m
Sorelle Ramonda
810 m
Buon Bread
830 m
Seveso107
960 m
Ceriani Centrotela
1,0 Km
Bar Bar
Bar Gelateria Tre Cime
500 m
Al Focolare
550 m
San Francesco
590 m
Bar
780 m
Il Chiostro
790 m
Ristoranti Ristoranti
Piccola Capri Sas Di Amer El Sayed & C.
660 m
La Vecchia Fiorentina
780 m
La Locanda
870 m
La Perla d'Oriente
880 m
Ristorante Pizzeria Pandy
940 m
Mostra tutto

Caratteristiche

Rif.:
61124935
Piano:
1 di 1 (ultimo Piano)
Condizionamento:
Assente
Ascensore:
No
Riscaldamento:
Centralizzato
Giardino:
Condominiale
Mostra tutto
Prezzo Prezzo
€ 285.000
Rata mutuo Rata mutuo
€ 1.354 / mese
Spese annue Spese annue
€ 2.000
Proponi il tuo prezzoProponi il tuo prezzo
Immobile valutato con T·Valuta

Classe Energetica

F
F
F
F
F
F
F
F
F
EP globale non rinnovabile:
218.17 kW h/m² anno
EP globale rinnovabile:
218.17 kW h/m² anno
EP invernale del fabbricato:
EP estiva del fabbricato:
Anno di costruzione:
1970
Riscaldamento:
Centralizzato
Tipo impianto:
A radiatori
Tipo alimentazione:
Metano

Ti interessa visionare l'immobile?

Fissa un appuntamento  Fissa un appuntamento

Richiedi informazioni

Clicca su Leggi per aprire l'informativa
* Questi campi sono obbligatori

Calcola il tuo mutuo

Semplice e senza impegno
Anticipo

( % )
Mutuo

( % )

pochi semplici passi

inserisci i tuoi dati
Questionario completato
Grazie per aver richiesto un appuntamento senza impegno con un nostro Consulente del Credito e Assicurativo.

Hai inserito correttamente tutti i dati necessari e a breve riceverai una e-mail con un link da convalidare per inviare i tuoi dati.
Affiliato
Maria Teresa Immobiliare Sas
Viale Rimembranze , 52 21047 Saronno (VA)

Il nostro staff


  • Mariateresa Dianese
    Affiliata

  • Nancy Aiello
    Coordinatrice

  • Federica Ropa
    Coordinatrice
Viale Rimembranze , 52 21047 Saronno (VA)
Zona: Saronno Centro-Saronno Stazione-Saronno Posta Nuova
Mostra su mappa
Orari: Da Lun. a Ven.9:00-12:30,14:45-19:30 Sabato chiusura 12:30
Affiliato
Maria Teresa Immobiliare Sas
Viale Rimembranze , 52 21047 Saronno (VA)

2026 Tecnocasa Franchising S.p.A. - P. IVA 08365160152 - Via Monte Bianco 60/A 20089 Rozzano (MI). Ogni agenzia ha un proprio titolare ed è autonoma. Privacy policy | Policy utilizzo | Cookie policy