Trilocale in vendita

Saronno, Via San Pietro
€ 230.000
3 locali 3 locali
110 Mq 110 Mq

Trilocale in vendita

Saronno, Via San Pietro

Descrizione annuncio

In posizione comoda per tutti i principali servizi della città e strategica per raggiungere facilmente con l’ingresso autostradale ,proponiamo in vendita un luminoso trilocale situato all’ultimo piano di una palazzina di recente costruzione.

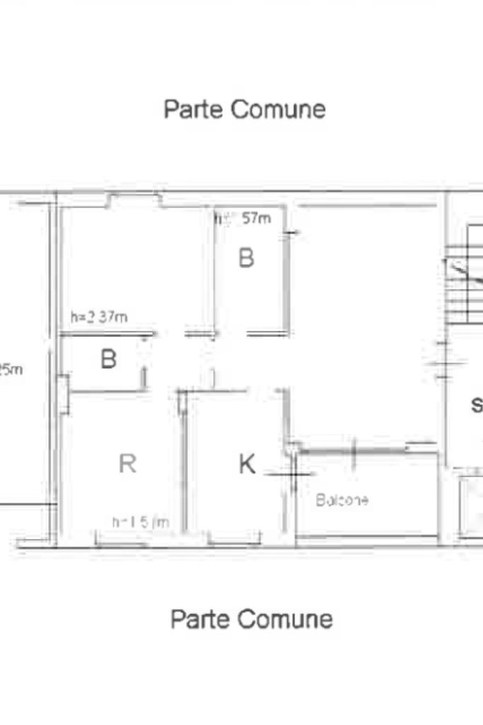
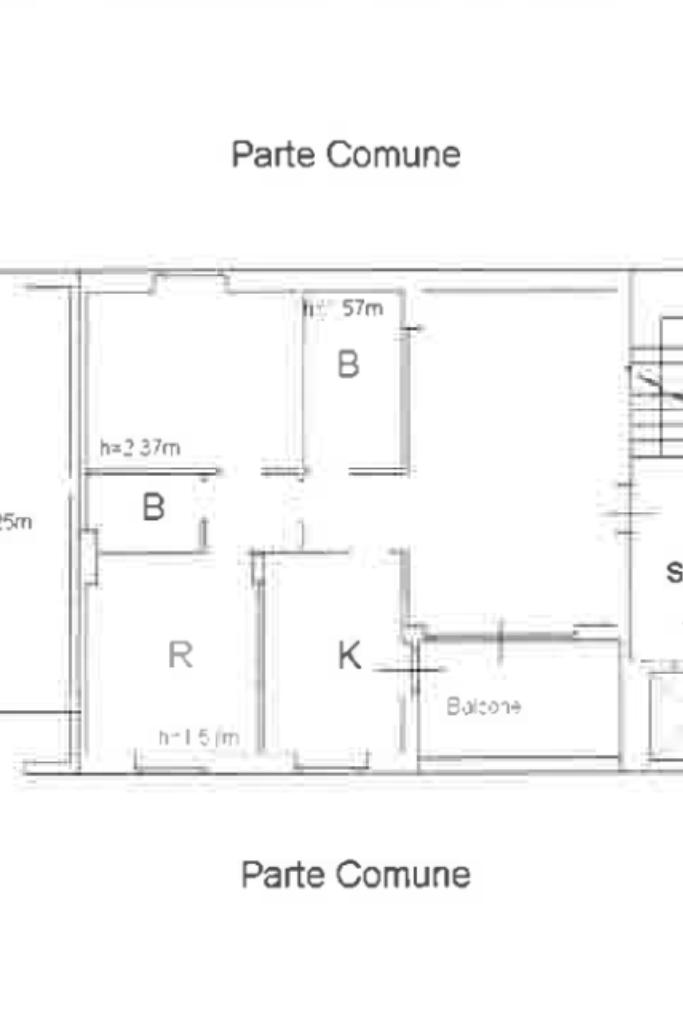
L’ingresso apre direttamente al soggiorno accogliente, ben separato dalla zona pranzo e con accesso al terrazzino che offre una metratura che permette di godere di relax in totale tranquillità.

Adiacente si trova la cucina abitabile e funzionale servita dall'accesso al terrazzo.

Nella zona giorno è presente un primo bagno finestrato, dotato di vasca.

Il disimpegno accompagna alla zona notte, dove sono distribuite due camere da letto e un secondo bagno.

L’appartamento si presenta in ottimo stato, con finiture di pregio, infissi e caldaia recentemente sostituiti.

Completano la proprietà cantina e box auto

Per qualsiasi informazione e per fissare un appuntamento puoi contattare il nostro ufficio di SARONNO in viale RIMEMBRANZE n. 52 Tel. 0296280030

Devi vendere? Vuoi conoscere il reale valore del tuo immobile?

Affidati alla nostra agenzia per avere una valutazione gratuita!


Siamo presenti a Saronno da oltre 30 anni e grazie alla profonda conoscenza del mercato locale, siamo in grado di effettuare una valutazione di mercato in termini precisi e tempestivi. A nostra disposizione abbiamo, TecnoValore, un software esclusivo in dotazione alle agenzie del Gruppo, che ci supporta nella valutazione degli immobili, grazie all'applicazione di metodologie statistiche che elaborano i dati su valutazioni e compravendite effettuate nella zona d'interesse.

Mostra tutto

Nelle vicinanze

Trasporto pubblico Trasporto pubblico
Saronno
Saronno
1,5 Km
Via Sampietro - Via Machiavelli (Saronno)
Via Sampietro - Via Machiavelli (Saronno)
240 m
Via King - Via Cervi (Saronno)
Via King - Via Cervi (Saronno)
250 m
Saronno Sud
Saronno Sud
1,8 Km
Ricariche auto elettriche Ricariche auto elettriche
Decathlon saronno
1,0 Km
BeCharge Autostazione di Saronno
1,4 Km
Origgio Repubblica | EnelX
1,5 Km
BECHARGE MUNICIPIO DI SARONNO
1,7 Km
Origgio XXV Aprile | EnelX
2,2 Km
Scuole Scuole
Scuola statale San Giovanni Bosco
670 m
Arcivescovile Castelli
1,4 Km
IPSIA "Parma"
1,5 Km
Liceo Scientifico "GB Grassi" Sede Staccata
1,5 Km
ITC "Zappa"
1,6 Km
Farmacia Farmacia
Farmacia Comunale
1,4 Km
Staurenghi
1,4 Km
Farmacia Galbiati
1,5 Km
Farmacia San Giorgio
1,6 Km
San Francesco
1,7 Km
Ospedali Ospedali
Ospedale di Saronno
2,4 Km
LABORATORIO ANALISI MEDICHE GESTIONE LABORATORI SCIENTIFICI LE BETULLE PUNTO PRELIEVI:
2,8 Km
Supermercati Supermercati
Esselunga
990 m
Carrefour Market
1,4 Km
Iperal
1,9 Km
Unes
2,2 Km
Lidl
2,2 Km
Negozi Negozi
Conbipel
680 m
Garibaldina
790 m
Buon Bread
1,5 Km
L'angolo del Gusto
1,6 Km
Dal Prestine
1,6 Km
Bar Bar
Alternativa Bar
980 m
Bar People
1,3 Km
Bar
1,5 Km
Madonna
1,5 Km
Vintage Karaoke
1,5 Km
Ristoranti Ristoranti
scibui
130 m
Four Seasons
1,0 Km
Garden
1,1 Km
Villa Verde
1,1 Km
Japanese Restaurant
1,2 Km
Mostra tutto

Caratteristiche

Rif.:
61118601
Piano:
3 di 3 con ascensore (ultimo Piano)
Condizionamento:
Autonomo
Ascensore:
Riscaldamento:
Autonomo
Giardino:
Condominiale
Mostra tutto
Prezzo Prezzo
€ 230.000
Rata mutuo Rata mutuo
€ 1.084 / mese
Spese annue Spese annue
€ 1.000
Proponi il tuo prezzoProponi il tuo prezzo
Immobile valutato con T·Valuta

Classe Energetica

E
E
E
E
E
E
E
E
E
EP globale non rinnovabile:
141.07 kW h/m² anno
EP globale rinnovabile:
141.07 kW h/m² anno
EP invernale del fabbricato:
EP estiva del fabbricato:
Anno di costruzione:
2000
Riscaldamento:
Autonomo
Tipo impianto:
A radiatori
Tipo alimentazione:
Metano

Ti interessa visionare l'immobile?

Fissa un appuntamento  Fissa un appuntamento

Richiedi informazioni

Clicca su Leggi per aprire l'informativa
* Questi campi sono obbligatori

Calcola il tuo mutuo

Semplice e senza impegno
Anticipo

( % )
Mutuo

( % )

pochi semplici passi

inserisci i tuoi dati
Questionario completato
Grazie per aver richiesto un appuntamento senza impegno con un nostro Consulente del Credito e Assicurativo.

Hai inserito correttamente tutti i dati necessari e a breve riceverai una e-mail con un link da convalidare per inviare i tuoi dati.
Affiliato
Maria Teresa Immobiliare Sas
Viale Rimembranze , 52 21047 Saronno (VA)

Il nostro staff


  • Mariateresa Dianese
    Affiliata

  • Nancy Aiello
    Coordinatrice

  • Federica Ropa
    Coordinatrice
Viale Rimembranze , 52 21047 Saronno (VA)
Zona: Saronno Centro-Saronno Stazione-Saronno Posta Nuova
Mostra su mappa
Orari: Da Lun. a Ven.9:00-12:30,14:45-19:30 Sabato chiusura 12:30
Affiliato
Maria Teresa Immobiliare Sas
Viale Rimembranze , 52 21047 Saronno (VA)

2026 Tecnocasa Franchising S.p.A. - P. IVA 08365160152 - Via Monte Bianco 60/A 20089 Rozzano (MI). Ogni agenzia ha un proprio titolare ed è autonoma. Privacy policy | Policy utilizzo | Cookie policy